



- Загальна площа будинку 90 м.кв.
- Земельна діляка 1.3 сот.
- Передній двір розрахований для паркування 2-х автомобілів
- Задній двір передбачає можливість будівництва критої тераси та зони відпочинку
Вартість будинку с земельною ділянкою 72 000 $
Акційна вартість на етапі будівництва. Ація діє до 29.02.2024


- Проектом передбаченно будівництво 10 будинків
- Кожен будинок має власний в'їзд у двір
- Земельні ділянки огороджені дерев'яними парканами та металлевими воротами зовні
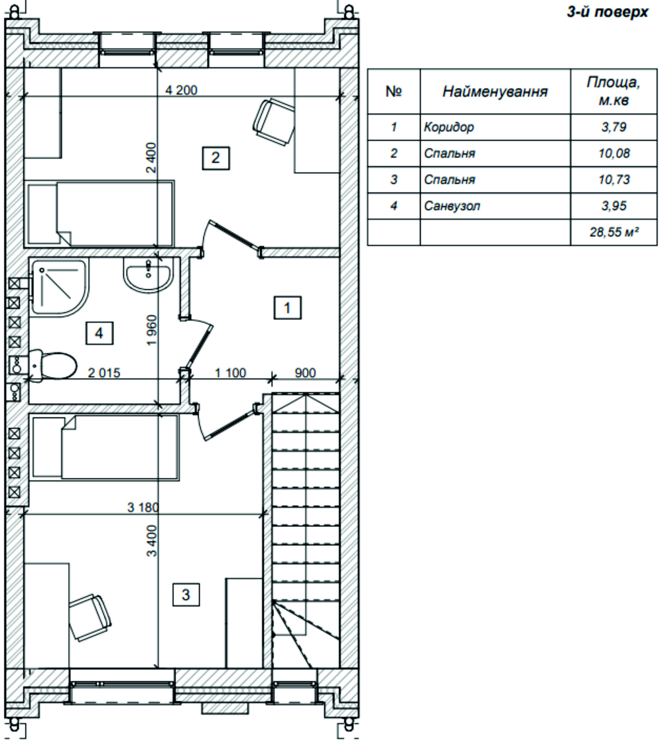
- Будинки мають 3 поверхи
- Всі будинки будуються по монолитно-каркасній технології
- Між етажами виконується монолітне перекриття та бетоні сходи
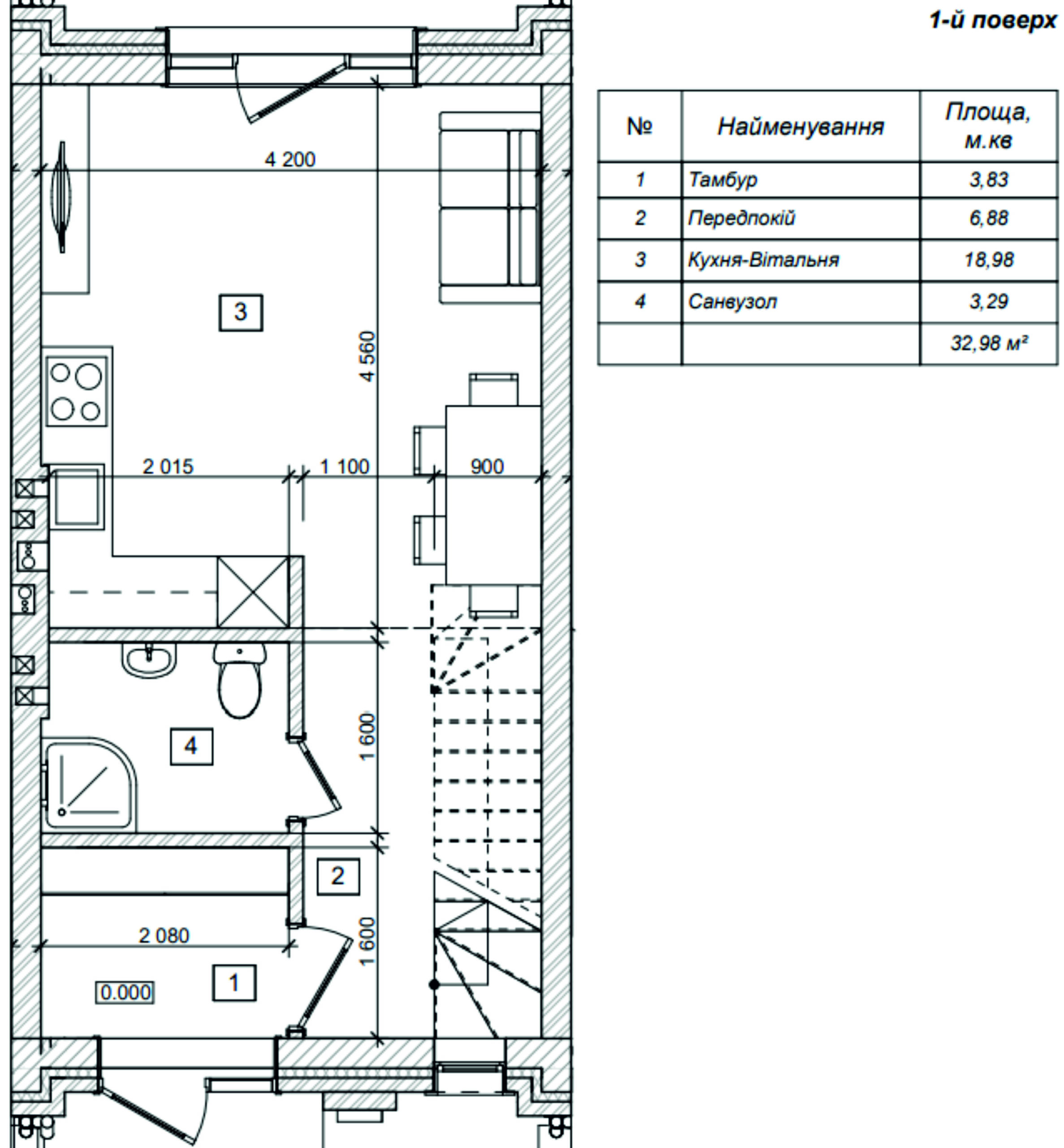
- Планування 1-го поверху передбачає кухню-віталню з виходом на терасу у задній двір
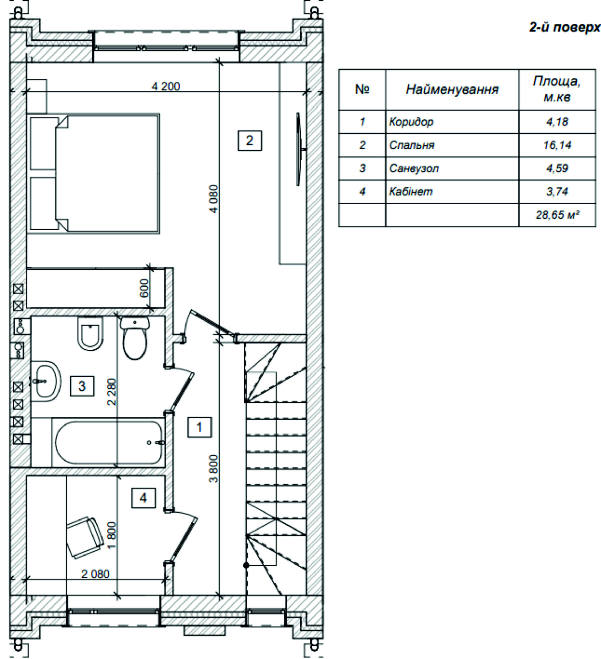
- Планування 2-го поверху передбачає спальню для батьків та кабінет
- Планування 3-го поверху передбачає 2-ві дитячи кімнати
- На кожному поверсі плануванням передбачений санвузол
Комплектація будинку
1. Фундамент монолітно-збірний
2. Несуча конструкція будинку молитний каркас із плитами перекриття
3. Стіни зовнішні газобетон 250 мм
4. Утеплення зовнішніх стін мінеральна вата 80 мм
5. Міжповерхове перекриття монолінна плита
6. Покрівля у теплена, бітумна черепиця.
1. Вхідні металеві двері
2. Металопластикові двокамерні вікна і двері (вихід на терасу)
3. Бетонні сходи між першим, другим і третім поверхами
4. Внунрішні перегородки — газоблок 100 мм., стіни санвузлів — кирпич
4. Влаштування чистової стяжки підлоги в кімнатах та коридорах 2-го та 3-го поверхів
5. Газовий двоконтурний котел 24 кВт
6. Розведення точок підключення водопостачання та каналізації у санвузлах по всіх поверхах.
1. Фасадний паркан — металевий, ворота та хвіртка
2. Паркан внутрішній дерев’яний
3. Передній двір вимощений тротуарною плиткою ФЕМ
4. Задній двір – облаштування вхідної групи тротуарною плиткою ФЕМ
1. Підключення будинку до міського водопроводу, встановлення лічильника холодної води
2. Підключення будинку до міської каналізації
3. Підключення будинку до міської електромережі, ввід кабелю до комутатора, встановлення електролічильника, проектна вхідна потужність 7 кВт (380 В)
4. Підключення будинку до міських мереж газопостачання, ввід в будинок 2-х точок з’єднання (котел і газова плита), встановлення лічильника газу
